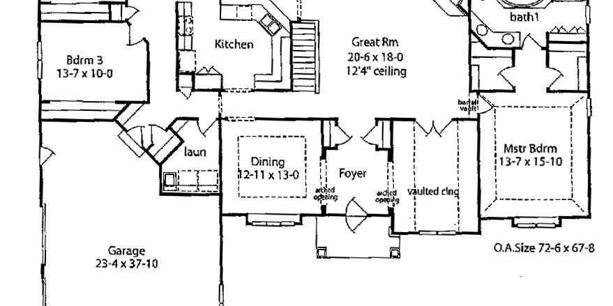
Wyndham

The Wyndham is an elegant ranch floor plan featuring an open-concept design with several vaulted ceilings. The centrally located kitchen and great room are great for entertaining. This ranch also features a formal dining room, which is ideal for larger family gatherings. The Wyndham features versatility with a study that can be used as a fourth bedroom, or formal living room! Make sure to ask one of our New Home Consultants about the alternative Wyndham French Country-style floor plan!
series: Select
style: 1 Story
bedrooms: 3
1st floor sq. ft.: 2,426
2nd floor sq. ft.:
total sq. ft.: 2,426
dimensions: 72.6′ wide x 67.8′ deep
room features: 3-Car Garage

