Augustine

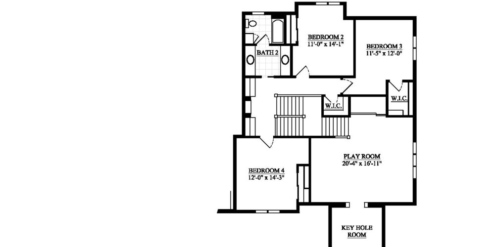
Just when we thought we couldn’t find a better floor plan than the original Augustine, we go ahead and make a Parade of Homes Augustine option! This Parade of Homes model includes all of the luxury features one could want in their dream home. With a barrel-round foyer ceiling, spacious kitchen, screen room and spacious great room, this home is screaming for large family entertainment night! Upstairs, you’ll find three additional bedrooms, as well as an additional space we’re calling a play room! The lower level is all about the details, with a fantastic bar area and a fifth bedroom!
property type: Parade of Homes
style: Two-Story
bedrooms: 5
1st floor sq. ft.: 2,160
2nd floor sq. ft.: 1,389
Lower level sq. ft.: 1,118
total sq. ft.: 4,667
dimensions: 67.3′ wide x 71.8′ deep
room features: 3-Car Garage


