Jamestown

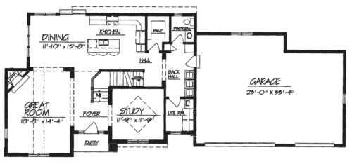
Our Jamestown 2-story floorplan is everything you could ask for in a floorplan! The first floor includes a kitchen perfectly fit for entertaining, featuring an island and dining area! The great room features a corner fireplace and a large amount of windows, making the entire first floor open and airy. The second floor, featuring all of the bedrooms, includes the master bathroom with a soaking tub and double sinks. The remaining three bedrooms are a fantastic size, and 2 out of the 3 bedrooms include a walk in closet!\
Contact us today for more information on our Jamestown floorplan!


