Ruskin

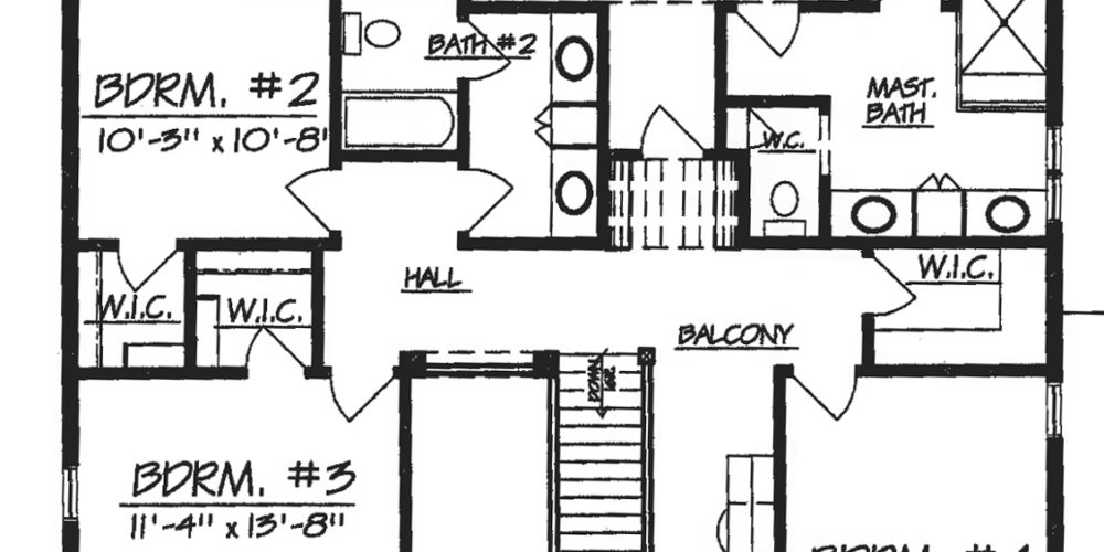
This home has beautiful curb-appeal, with its tapered columns and uniquely-placed stonework. You’re welcomed into the home with a generous-sized study, which gives you flexibility and creativity to make this home your own. The great room is paired next to the spacious kitchen, giving this two-story an open concept feel. The second story consists of four bedrooms, all of which include a walk-in closet!
series: Select
style: Two-Story
bedrooms: 4
1st floor sq. ft.: 1,275
2nd floor sq. ft.: 1,479
total sq. ft.: 2,754
dimensions: 47.6′ wide x 49.2′ deep
room features: 2-Car Garage


