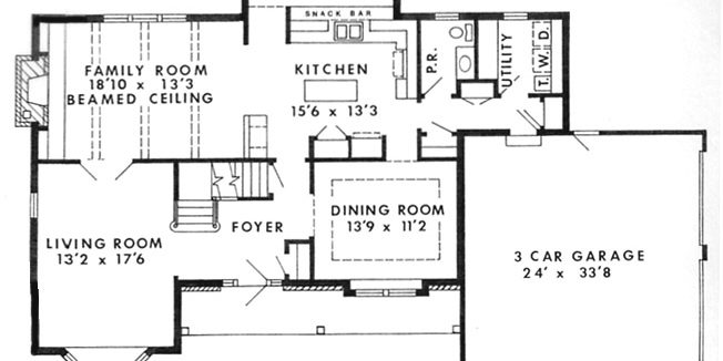
Providence Cape

Additional Features:
- Walk in pantry
- French doors to Living Room
- Full masonry fireplace
- Angle bay dinette with vault ceiling
- Bay window at dinette
- Crown molding at dining room and family room
property type: Premier
style: Two-Story
bedrooms: 4
1st floor sq. ft.: 1,419
2nd floor sq. ft.: 1,258
total sq. ft.: 2,806
dimensions: 70′ x 43.2′
room features: Dinette Sunroom, Open Foyer


