American Heritage

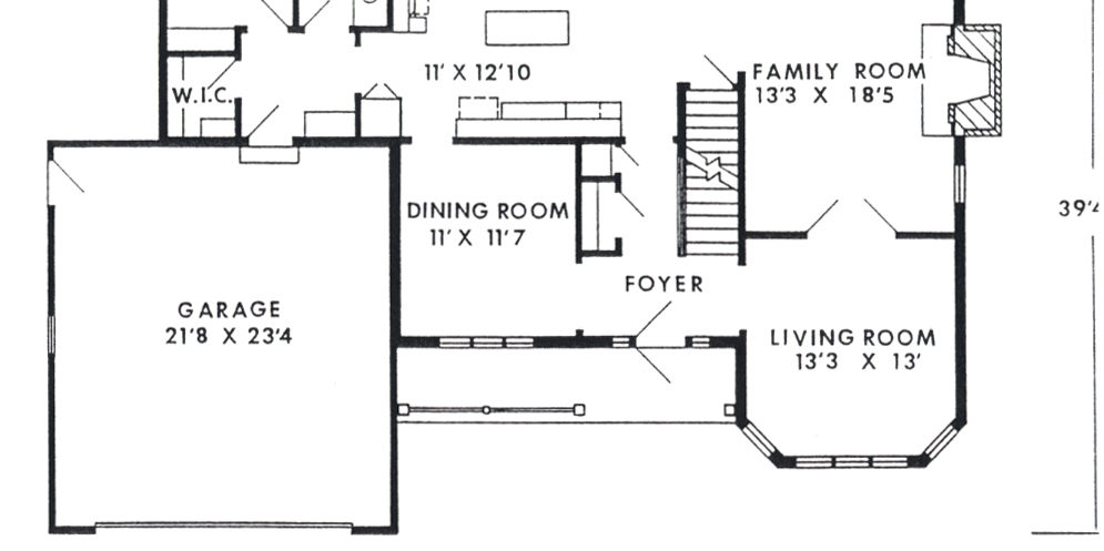
The American Heritage is a popular modern Victorian plan. It has a spacious kitchen, large rear hallway with a boot bench & walk in closet. It also boasts a study, family room, & dining room on the first floor. Upstairs you will find 4 large bedrooms with a vaulted master bedroom, elliptical window, & large bath suite!
series: Select
style: Two-Story
bedrooms: 4
1st floor sq. ft.: 1,250
2nd floor sq. ft.: 1,068
total sq. ft.: 2,318
dimensions: 57.2′ wide x 39.2′ deep
room features: 2-Car Garage,


