The George Ross III
Directions
The 2013 MBA Parade of Homes Model the George Ross II, is a popular model of Belman Homes located on lot #19 in Quail Haven Subdivision on Ridgeline Drive in Menomonee Falls.
Media
The George Ross III Parade of Homes model was featured on Fox 6 News story.
Features
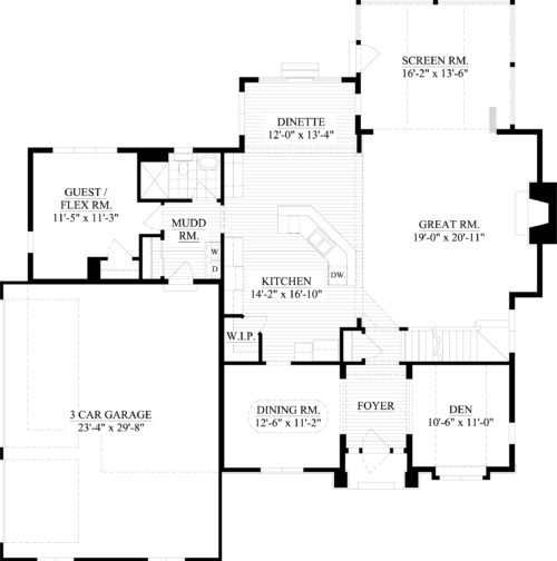
3,801 Total sq. ft., 5 Bedrooms, 3.5 Bathroom, 3 Car Garage
About
We have taken our best selling plan the George Ross and included some exciting new design changes including an expanded kitchen, a screened in porch, second floor outdoor balcony, and a finished lower level. There are many other unique products and designs that will be featured in this home. This beautiful and popular design is situated on a southern exposure lot with a pristine view of a tranquil pond.
The George Ross II has it all from the impressive 2 story great room with catwalk to the open kitchen with a stone archway you are sure to enjoy the open feel of this home. Speaking of open, make sure to check out the twelve foot folding door to the screen porch that opens up from the great room. What a way to entertain!
The first floor also features a study, a den, plus a 4th bedroom/flex room with a full bathroom which makes this home perfectly adaptable for changing lifestyles.
Built with those details in mind you will find many handcrafted touches to the home. From the mill made custom cabinets, built in cubbies in the rear hall, to the built in wardrobe center in the master bath you will enjoy all the storage in the home.
The master suite includes a vaulted ceiling and patio door to the outdoor 2nd floor balcony. The master bath boasts conveniences such as Kohler’s DTV digital shower with a rain head or enjoy hydrotherapy at its finest with a VibrCustic tub for a sound therapy experience. Speaking of sound, your kids will love the Moxie shower head in their bath which connects to their I-pod. If you love technology, then you will love the Nexia automation system that is standard in all our homes.
The finished lower level includes a 5th bedroom, spacious rec room, full bath, and a bar with stained concrete floors.
Take a virtual tour of the home!



